adesign architectural company

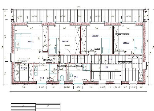
Habitation passive à Sombreffe

Habitation passive autonome de système de chauffage central.

Poêle à pellets, couplé à 1 puit canadien avec échangeur de chaleur.

Ossature et gîtages rez en 240mm

Isolation Isofloc

Adresse

rue de la Fontaine 8
5070 Fosses-la-Ville

Contact

Téléphone: +32 (0)71.713.960